
Foto: Thomas Haugersveen
I en ny og omfattende studie er det nå vist at godt inneklima kan oppnås med vesentlig mindre klimapåvirkning. Men forholdet mellom løsningene overrasket forskerne.
Forskningsprosjektet Grønn VVS viser at VVS står for 20-40 prosent av klimagassbelastningen knyttet til materialbruk i nybygg. I en av de første anvendelsene av Multiconsults egenutviklede klimagass-verktøy ble ulike løsninger sammenlignet for et lite utsnitt av et kontorlandskap. Resultatene viste store bundne utslipp fra materialer, og stor variasjon mellom løsningsvalg. Enkelte komponenter, som radiatorer, fremsto spesielt utslippsintensive. Siden studiet omfattet et mindre areal, var funnene ikke nødvendigvis riktige for hele anlegg i bygg, inklusive infrastruktur. Mer forskning var nødvendig.
For å få svar på hva som er fremtidens løsninger, så forskerne det nødvendig å studere ulike løsninger mer helhetlig, basert på en hypotese om at valg av klimatiseringsløsning har stor betydning for klimagassutslipp. En egen studie ble derfor opprettet i samarbeid mellom forskningsmiljøene Grønn VVS og Hybridene. Det ble utarbeidet ulike aktuelle typologier for skole og kontor, som ble modellert i Revit og grundig simulert i IDA ICE, for å danne basis for å beregne klimagassutslipp fra materialbruk, energibruk og oppnådd inneklima. Arbeidene for begge bygningskategoriene, samt hybride løsninger, publiseres i en egen rapport i 2025, men deler av hovedfunnene for kontor presenteres her.
I arbeidet er fem ulike typologier studert i et typisk kontorbygg:

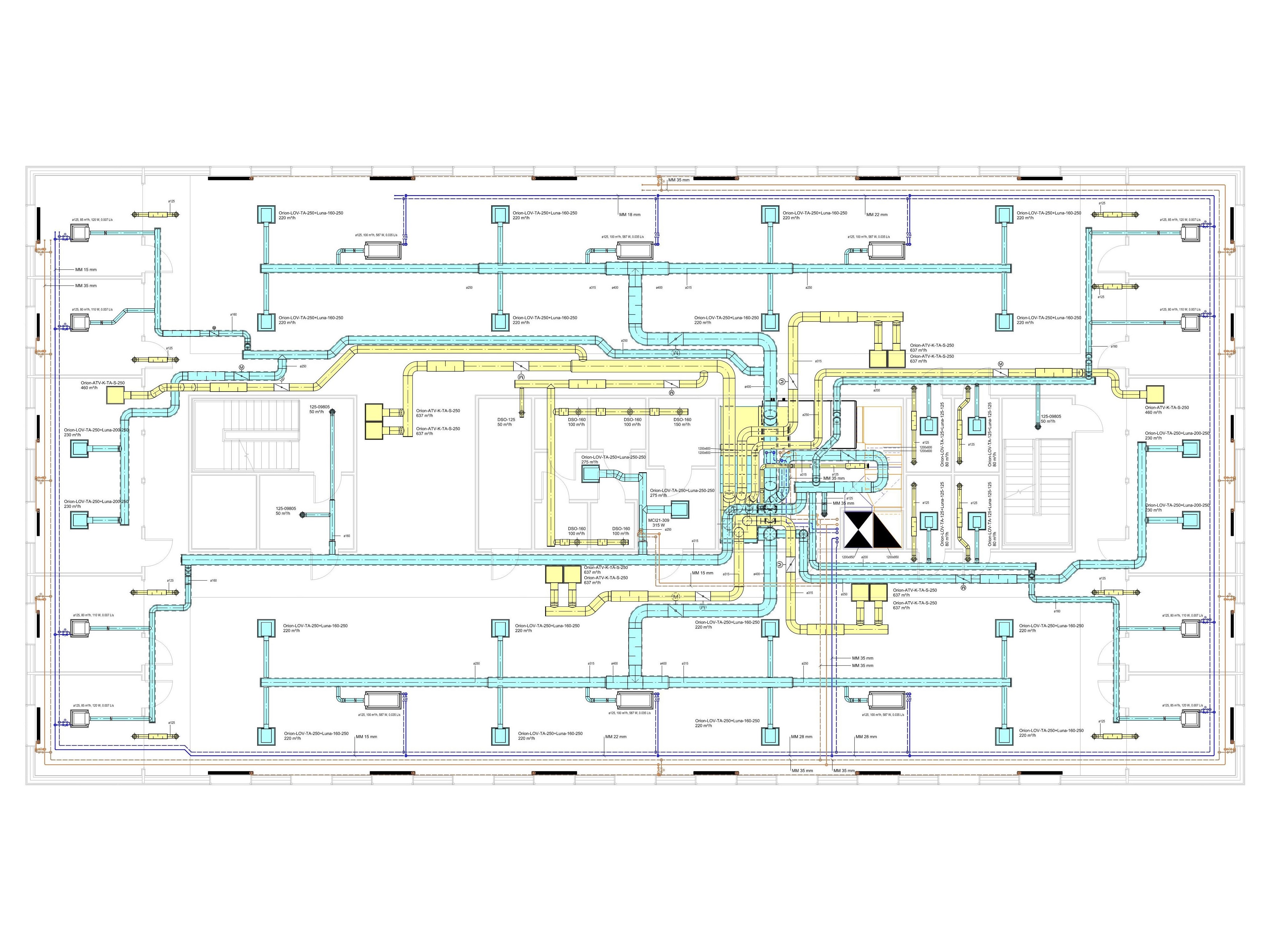
Figur 1: Konvensjonell klimatisering, med 2-rørs kjølebafler.
Foto: Multiconsult

Figur 2: Kontormaskin, dvs. 4-rørs kombibafler til både kjøling og oppvarming.
Foto: Multiconsult

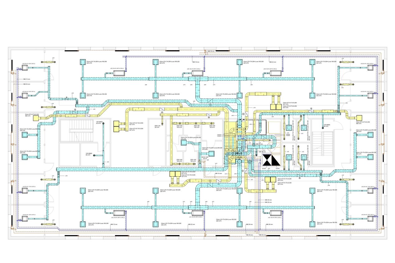
Figur 3: Aktive ventiler med VAV innebygget i ventilene.
Foto: Multiconsult

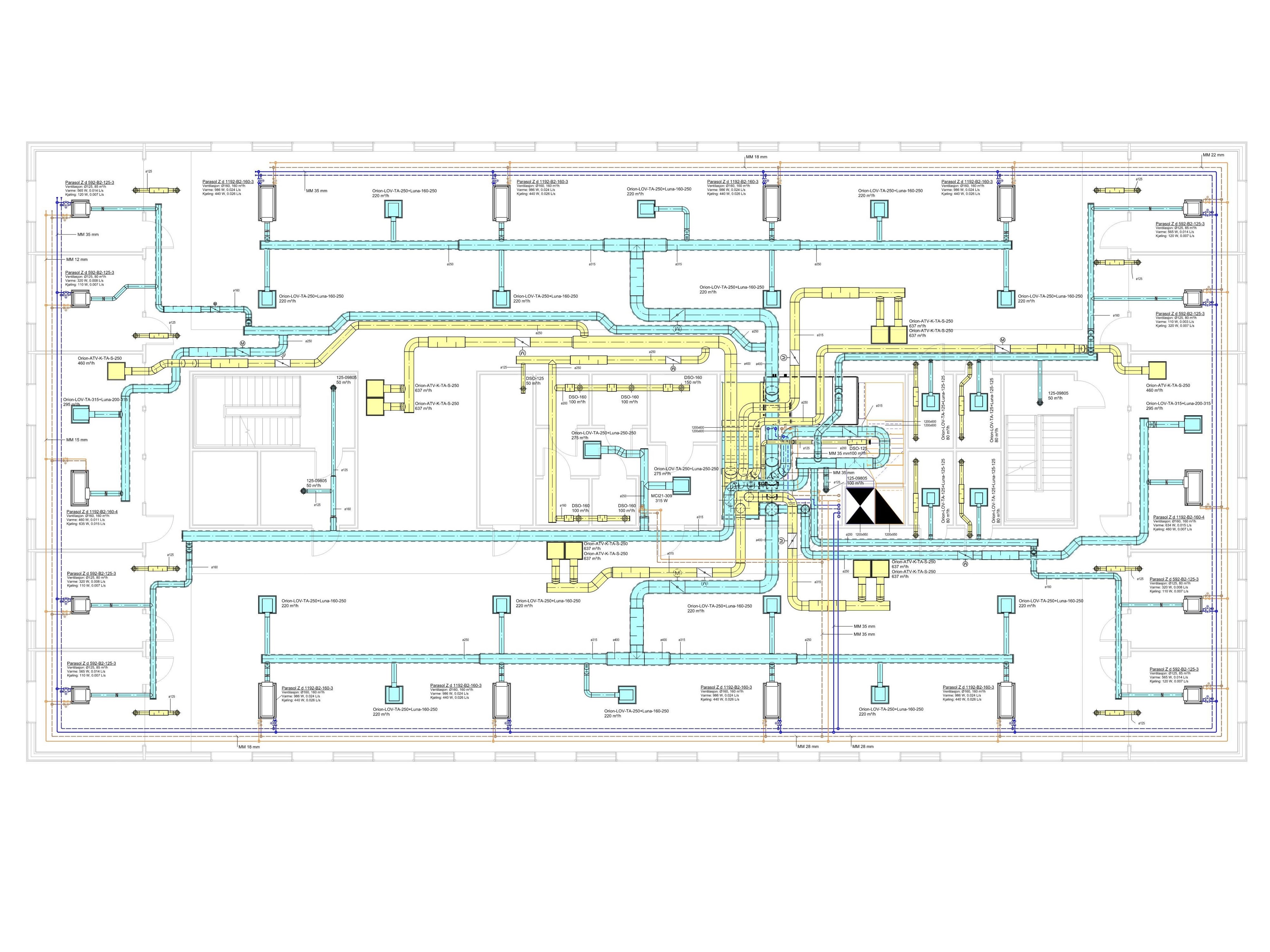
Figur 4: Aktive ventiler med VAV innebygget i ventilene, lavtemperert gulvvarme.
Foto: Multiconsult

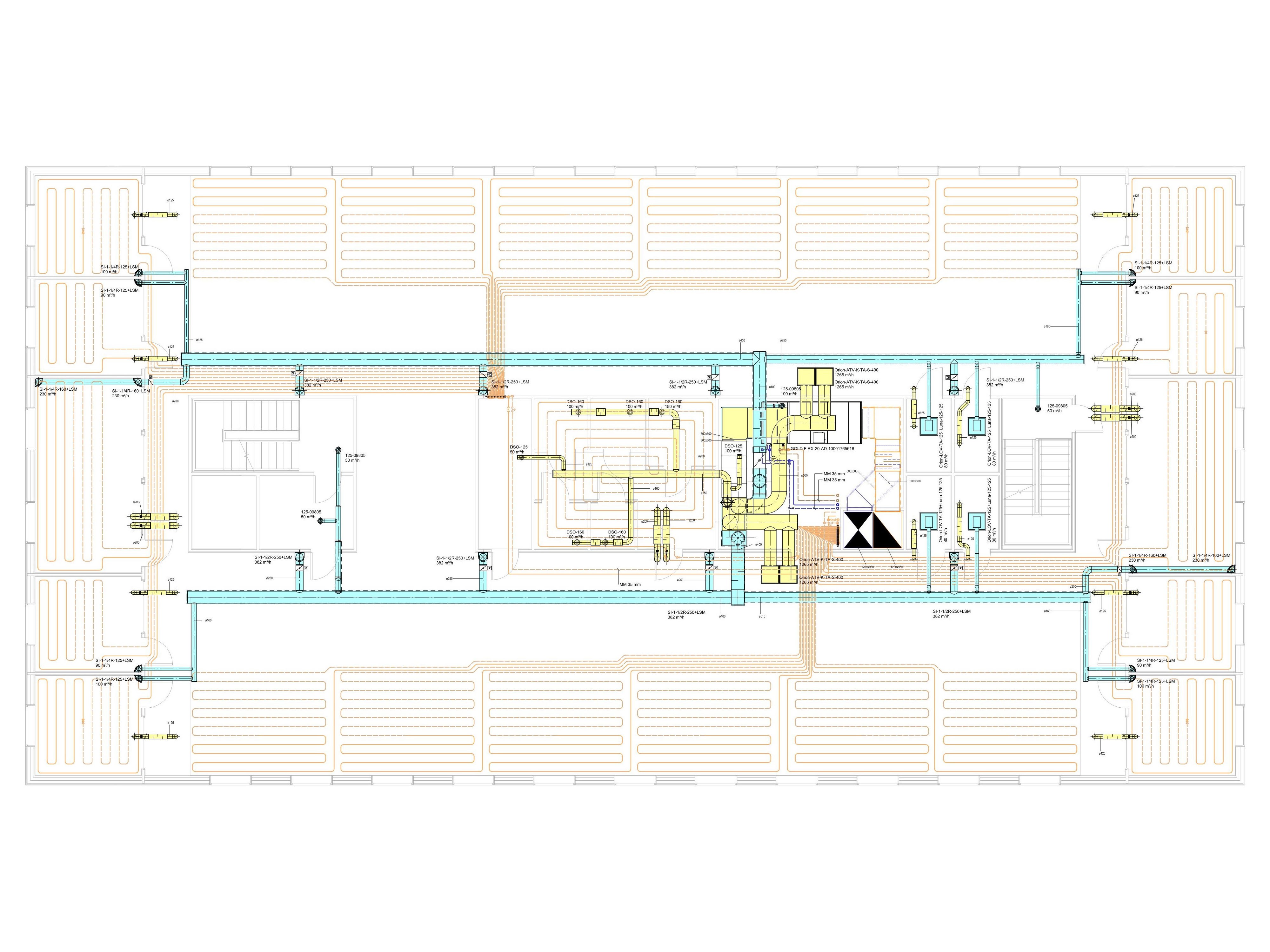
Figur 5: Trimmet fortrengningsløsning med sentralt plasserte fortrengningsventiler.
Foto: Multiconsult
Det er i sammenligning av disse mekaniske løsningene forsøkt å forutsette tilsvarende ytelser for inneklima, som tross alt er hovedformålet med installasjonene. Omfattende simuleringer er derfor utført i verktøyet IDA ICE. Resultatene viser at 26 °C maks operativ temperatur ved dimensjonerende sommerforhold oppfylles for alle vurderte soner i driftstiden. Eneste unntak er at settpunkt-temperaturen i TF-løsningen er 27 °C, for å hensynta at det i simuleringen i praksis styres etter temperatur i avtrekken, grunnet stratifisering. Årssimuleringer viser imidlertid at alle soner er under makskravet på 50 timer temperaturoverskridelse, og CO2-nivå 1000 ppm.
Simulert netto energibehov i IDA ICE for løsningene fremgår av figur 6. Figuren viser at TF-løsningen har lavest netto energibehov, hovedsakelig grunnet lavere energibehov til ventilasjonskjøling og romkjøling sammenlignet med øvrige løsninger. Dette skyldes at løsningen oppnår tilfredsstillende inneklima med lavere luftmengder enn de andre, noe som også reduserer energibehovet til vifter. Blant MEK-løsningene er det små marginforskjeller, der MEK4 har en anelse høyere netto energibehov, og MEK3 har en anelse lavere. Utslagene er sannsynligvis knyttet til forskjeller i regulering og treghet i løsningene.

Figur 6: Netto energibehov til klimatisering avhengig av hvilken klimatiseringsløsning velges.
Foto: Multiconsult
Behovet for levert energi til bygget fremgår av figur 7. Dette er avhengig av flere forhold enn netto energibehov, eksempelvis hvor effektive varme- og kjøleavgiverne er og energiforsyningsløsning. I den mer dyptgående rapporten er det benyttet to ulike energiforsyningsløsninger, men her presenteres kun resultatene ved bruk av fjernvarme og kjølemaskin med tørrkjøler.
Resultatene for levert energi viser at det fortsatt er relativt liten forskjell på MEK1-4, med en tendens til høyere energibehov i MEK 3, mens TF har det laveste behovet for levert energi.

Figur 7: Behov for levert energi til klimatisering av bygget.
Foto: Multiconsult
Ved installasjon oppstår bundne utslipp som hovedsakelig stammer fra produksjonen av materialer, mens utslipp knyttet til utskifting og energibruk i driftsfasen er fremtidige og akkumuleres over tid. Over en analyseperiode på 50 år vil utslipp fra energibruk i drift utgjøre en betydelig andel av de totale utslippene, men det knytter seg større usikkerhet til forhold som påvirker fremtidige utslipp. Derfor er det hensiktsmessig å prioritere materialbruk, ettersom utslipp fra denne kilden kan reduseres raskt og med større sikkerhet.
Klimagassutslipp fra materialer for løsningene fremgår av figur 8, hvor det fremgår at MEK1-4 har utslipp av samme størrelsesorden, mens TF har omtrent 30 prosent lavere utslipp enn MEK1. Hovedfunnet er dermed at forskjellene mellom «vanlige» mekaniske løsninger er liten, når en ser på bundne utslipp fra materialer. Nøkkelen til å innfri betydelige utslippsreduksjoner synes å være å optimalisere installerte kapasiteter i anleggene, slik som i TF-scenarioet.

Figur 8: Klimagassutslipp tilknyttet materialbruk for klimatiseringsløsningene.
Foto: Multiconsult
De generelle trendene som går igjen for alle løsninger er at bygningsdel 36 Luftbehandling, med underkategorier, står for omtrent 90-95 prosent av utslippene, og 362 Kanaler alene står for omtrent 50 prosent av de totale utslippene. Dernest kommer 365 Luftbehandling (aggregater) og 364 Luftfordelingsutstyr (ventiler og bafler) med betydelige bidrag. Til forskjell fra våre første studier, gir ikke radiatorer og separate oppvarmingssystemer så stort utslag.
Selv om redusert materialbruk kanskje er viktigst i dag, må et mer helhetlig livsløpsperspektiv vurderes. Gjennom et byggs levetid spiller utslipp knyttet til energibruk en vesentlig rolle for samlet klimapåvirkning. Utslippene påvirkes av løsningenes energibehov, energivarene som inngår, og utslippsintensitet i energiproduksjon hos leverandør. Fordelingen mellom bundne utslipp og driftsrelaterte utslipp er som regel asymmetrisk fordelt gjennom levetiden til et bygg, og usikkerheten knyttet til utslippsintensiteten i framtidig energiproduksjon er betydelig. For å unngå suboptimalisering og problemflytting bør likevel alle løsninger så langt som mulig vurderes helhetlig, med vekt på både bundne og driftsrelaterte utslipp. Etablering av nye energikilder er også problematiske med tanke på bruk av arealer, natur og politiske hensyn.
Klimagassutslipp for materialer og energi fremgår av figur 9. Resultatet viser at MEK1, 2 og 4 er av samme størrelsesorden, mens MEK3 har et betydelig høyere utslipp. De økte utslippene til MEK3 er forårsaket av at en stor andel av energibruket er direktevirkende elektrisitet. TF medfører en reduksjon på 23 prosent av totale klimagassutslipp sammenlignet med MEK1. Hovedfunnene, når energibruk i drift inkluderes, er at økt bruk av elektrisk oppvarming gir betydelig økte utslipp, og at nedskalering av løsning gir betydelig reduksjon. Valg av klimatiseringsløsning har ellers liten betydning.

Figur 9: Klimagassutslipp inkludert bundne utslipp og utslipp knyttet til energibruk i drift.
Foto: Multiconsult
Den nedskalerte klimatiseringsløsningen TF gir lavere klimagassutslipp i regnskapet, både knyttet til materialbruk og energibruk i drift. Å redusere materialbruk er et av de sikreste tiltakene man kan gjøre for å kutte i klimagassutslipp, som også gir rask effekt. Fremtidige utslipp er mer usikre, og resultatene er særlig sensitive for utskiftninger (B4), som avhenger av komponentenes levetid, og energibruk i drift (B6), som påvirkes av utviklingen i energimiks og endringer i regnemetoder. En av hovedårsakene til at tekniske installasjoner ofte byttes ut, er endringer i bruk av bygg. Eksempelvis er det ved skifte av leietaker i kontorbygg i dag ikke uvanlig at hele etasjer renskes til dekke. En strategi for å forhindre at dette skjer i fremtiden er å installere løsninger som tåler endret bruk og rominndeling – ofte kalt endringsdyktighet.
Løsningene MEK 4 og 5 inneholder gulvvarme og -svale, som begrenser muligheten for å endre rominndeling og forflytning av oppvarming- og kjølebehov. Løsningen TF inneholder også sentralt plasserte fortreningsventiler, som forutsetter at det ikke settes hindringer i vegen for luftens spredning ut i lokalet. TF legger derfor betydelige begrensninger for fremtidige endringer og etablering av nye rom. På den ene siden er det åpenbart at TF gir redusert miljøbelastning i dagens situasjon, men på den andre siden kan en mer endringsdyktig løsning leve lengre. Investeringer i materialer og kroner i dag, som innenfor et visst sannsynlighetsrom gir fremtidig gevinst, er mer usikre tiltak enn redusert materialbruk. Men dersom det gjøres riktig og effekten er stor nok, kan det lønne seg.
Problemstillingen er i liten grad utforsket i dag, og dagens bransjestandard for klimagassberegninger er ikke tilstrekkelig. På grunn av dette er det vanskelig å konkludere entydig på hvilken strategi som er best, og det er derfor behov for videre forskning før dette kan besvares fullt ut.
I det mer omfattende arbeidet som ligger bak denne artikkelen, er også flere hybride løsninger studert. I disse står mekanisk ventilasjon kun for en andel av ventileringen. Sammenlignet med de mekaniske løsningene presentert i denne artikkelen så gir hybrid ventilasjon besparelser i klimagassutslipp. Men for slike løsninger er det også større variasjoner i inneklima og en rekke andre forhold som påvirker aktualitet og mulighet for skalering og bruk. Disse løsningene og funnene har ikke vært i fokus i Grønn VVS, men vil presenteres i en egen rapport fra prosjektet FoU Hybridene.
Tidlige studier i Grønn VVS indikerte at det var mulig å oppnå store klimagassbesparelser ved å velge riktige klimatiseringsløsninger, uten å redusere kapasiteten til anleggene. Men studiene var begrenset til et utsnitt av en etasje, og inkluderte ikke hovedføringer av rør- og kanaler, aggregat, eller energibehov. Studien som nå er utført er mer helhetlig, og inkluderer en hel etasje med all nødvendig infrastruktur, med unntak av selve energisentralen. Bildet har endret seg, og det viser seg å være liten forskjell knyttet til valg av klimatiseringsløsning. Resultatene viser derimot at økt bruk av elektriske varmeavgivere er negativt for klima, og at en nedskalering av VVS-anleggene gir en gevinst.
Det at reduksjon av utslipp nå haster, er et godt argument for å bruke nedskalerte løsninger. Samtidig er det for liten kunnskap knyttet til endringsdyktighet og fremtidige utskiftninger. Det bør derfor vurderes om anlegg kan nedskaleres, samtidig som det gjøres vurderinger av endringsdyktighet og fremtidig bruk i hvert enkelt prosjekt.
Forfatterne ønsker å presisere at studiet er gjort av et enkelt teoretisk kontorbygg, i ett spesifikt klima, med et spesifikt sett av produkter. Resultatene bør derfor brukes med aktsomhet og kan i begrenset grad gjøres gjeldende for andre bygg, og ikke for andre bygningskategorier eller klimasteder. Når det er sagt er studien grundig gjennomarbeidet og representerer vanlig praksis og produkter, og gir derfor klare indikasjoner for veien videre mot lavere klimagassutslipp fra klimatisering av bygg.
Grønn VVS er et Innovasjonsprosjekt i næringslivet, støttet av Norges forskningsråd. Prosjektet ble gjennomført i perioden september 2021 til mars 2025.
Prosjektets mål: Bygge kompetanse, utvikle nye tjenester og dele kunnskap. Vise veien til 50 % reduksjon av klimagass fra VVS-installasjoner i forbildeprosjekter
Prosjektansvarlig er Multiconsult. Samarbeidspartnere i prosjektet er Höegh Eiendom, GK, Armaturjonsson, Swegon, KLP Eiendom og Pipelife. FoU-leverandør er OsloMet. Referansegruppen består av VKE og FutureBuilt.